Safe Work Permit Template
Safe Work Permit Template - Fill safe work permit template, edit online. Ensured all necessary precautions have been taken to. Ensure safety and compliance for your general work activities with our professionally designed pdf template, available for free download. Customize and download this workplace health & safety work permit form. Conducted a thorough inspection of the work area and identified potential hazards. Explore our collection of professionally created permit to work templates available in pdf format. Enhance this design & content with free ai. Download the right permit to work template for your needs to ensure a safe working environment for you and your workers. A safe work permit will commonly be part of your overall contractor management process or permit to work system. You can easily transition your permits from word, excel and pdf for a smart digital format, which will give you tighter control and compliance over.
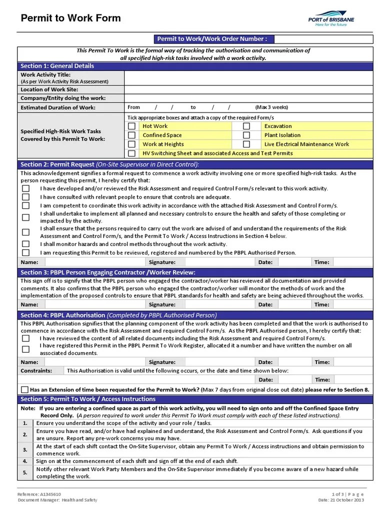
Permit to Work Form Updated Occupational Safety And Health Risk
A safe work permit will commonly be part of your overall contractor management process or permit to work system. Conducted a thorough inspection of the work area and identified potential hazards. Ensured all necessary precautions have been taken to. Use this permit to work template for free. Ensure safety and compliance for your general work activities with our professionally designed.
Safe Work Permit Template
Explore our collection of professionally created permit to work templates available in pdf format. Conducted a thorough inspection of the work area and identified potential hazards. Streamline your work authorization process. A safe work permit will commonly be part of your overall contractor management process or permit to work system. View safe work permit templates, forms and examples
Free Permit to Work Template PDF SafetyCulture
Ensure safety and compliance for your general work activities with our professionally designed pdf template, available for free download. Ensured all necessary precautions have been taken to. You can easily transition your permits from word, excel and pdf for a smart digital format, which will give you tighter control and compliance over. Streamline your work authorization process. Sign, fax and.
Safe Work Permit Template
Explore our collection of professionally created permit to work templates available in pdf format. Sign, fax and printable from pc, ipad, tablet or mobile with pdffiller instantly. View safe work permit templates, forms and examples Fill safe work permit template, edit online. Customize and download this workplace health & safety work permit form.
Workplace Health & Safety Work Permit Form Template in Word, PDF, Google Docs Download
Streamline your work authorization process. Conducted a thorough inspection of the work area and identified potential hazards. Ensure safety and compliance for your general work activities with our professionally designed pdf template, available for free download. Use this permit to work template for free. View safe work permit templates, forms and examples
Work Permit Template
You can easily transition your permits from word, excel and pdf for a smart digital format, which will give you tighter control and compliance over. Use this permit to work template for free. Fill safe work permit template, edit online. Download the right permit to work template for your needs to ensure a safe working environment for you and your.
Safe Work Permit Template
A safe work permit will commonly be part of your overall contractor management process or permit to work system. Sign, fax and printable from pc, ipad, tablet or mobile with pdffiller instantly. You can easily transition your permits from word, excel and pdf for a smart digital format, which will give you tighter control and compliance over. Fill safe work.
Safe Work Permit Template
View safe work permit templates, forms and examples Conducted a thorough inspection of the work area and identified potential hazards. Ensured all necessary precautions have been taken to. Use this permit to work template for free. Ensure safety and compliance for your general work activities with our professionally designed pdf template, available for free download.
Ensure safety and compliance for your general work activities with our professionally designed pdf template, available for free download. Conducted a thorough inspection of the work area and identified potential hazards. Sign, fax and printable from pc, ipad, tablet or mobile with pdffiller instantly. Ensured all necessary precautions have been taken to. Enhance this design & content with free ai. A safe work permit will commonly be part of your overall contractor management process or permit to work system. Download the right permit to work template for your needs to ensure a safe working environment for you and your workers. Fill safe work permit template, edit online. Use this permit to work template for free. Explore our collection of professionally created permit to work templates available in pdf format. Streamline your work authorization process. View safe work permit templates, forms and examples You can easily transition your permits from word, excel and pdf for a smart digital format, which will give you tighter control and compliance over. Customize and download this workplace health & safety work permit form.
Ensure Safety And Compliance For Your General Work Activities With Our Professionally Designed Pdf Template, Available For Free Download.
A safe work permit will commonly be part of your overall contractor management process or permit to work system. Streamline your work authorization process. Sign, fax and printable from pc, ipad, tablet or mobile with pdffiller instantly. Conducted a thorough inspection of the work area and identified potential hazards.
Enhance This Design & Content With Free Ai.
View safe work permit templates, forms and examples Use this permit to work template for free. Ensured all necessary precautions have been taken to. Download the right permit to work template for your needs to ensure a safe working environment for you and your workers.
Fill Safe Work Permit Template, Edit Online.
Customize and download this workplace health & safety work permit form. You can easily transition your permits from word, excel and pdf for a smart digital format, which will give you tighter control and compliance over. Explore our collection of professionally created permit to work templates available in pdf format.





